Penthouse Nr 29 Sohler Weg 55
Objektdetails
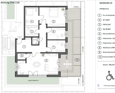
Beschreibung
Wohnung 1 überzeugt durch einen klar strukturierten Grundriss, großzügige Raumproportionen und eine hochwertige Außenfläche. Mit einer Gesamtwohnfläche von ca. 87,5 m² bietet sie ein komfortables Zuhause für Paare, kleine Familien oder anspruchsvolle Eigennutzer.
Der zentrale Wohn-, Koch- und Essbereich mit ca. 36,7 m² bildet das Herzstück der Wohnung. Große Fensterflächen sorgen für viel Tageslicht und schaffen eine offene, freundliche Wohnatmosphäre. Von hier aus ist die Terrasse direkt zugänglich, die mit einer Fläche von 17,27 m² (anteilig 8,64 m²) zusätzlichen Freiraum bietet und durch angrenzende Dachbegrünung sowie Sichtschutz eine hohe Aufenthaltsqualität gewährleistet.
Über den Flur mit integrierter Garderobe sind alle Räume effizient erschlossen. Das Elternschlafzimmer mit ca. 13,9 m² bietet ausreichend Platz für einen großzügigen Kleiderschrank. Das Kinder- oder Arbeitszimmer mit ca. 10,2 m² ist flexibel nutzbar. Das modern geschnittene Bad (ca. 7,05 m²) sowie ein separater Abstellraum mit ca. 3,0 m² unterstreichen den funktionalen Anspruch der Wohnung.
Die durchdachte Planung, klare Raumtrennung und der private Außenbereich machen Wohnung 1 zu einer nachhaltigen und wertstabilen Wohneinheit innerhalb des Projekts.









