Penthouse Nr 33 Sohler Weg 55
Objektdetails
Beschreibung
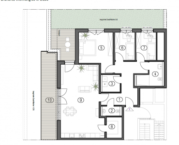
Diese großzügige Wohnung im Staffelgeschoss des Kastanienhofs bietet ein hochwertiges Wohnkonzept mit viel Raum, klarer Struktur und einem ausgeprägten Bezug zum Außenbereich. Der Grundriss ist offen gestaltet und zugleich funktional gegliedert, sodass gemeinschaftliche und private Bereiche klar voneinander getrennt sind.
Der Flur mit Garderobenbereich bildet das zentrale Verbindungselement der Wohnung. Ein separates WC, ein Hauswirtschaftsraum sowie ein zusätzlicher Abstellraum sorgen für praktische Abläufe und ausreichend Stauraum im Alltag.
Der offen gestaltete Wohn-, Koch- und Essbereich mit rund 46 m² bildet das Herzstück der Wohnung. Große Fensterflächen sorgen für viel Tageslicht und ermöglichen einen direkten Zugang zur großzügigen Terrasse, die den Wohnraum deutlich nach außen erweitert und vielfältige Aufenthaltsmöglichkeiten bietet.
Der private Bereich umfasst ein Elternschlafzimmer sowie zwei Kinderzimmer, die kompakt, aber funktional geschnitten sind und flexibel genutzt werden können. Das Bad ist gut erreichbar und alltagstauglich dimensioniert.
Ein besonderes Highlight ist die sehr großzügige Terrasse mit über 32 m² Fläche, die Raum für unterschiedliche Nutzungen im Freien bietet. Die Lage im Staffelgeschoss sorgt für ein hohes Maß an Privatsphäre und eine besondere Wohnqualität.
Mit rund 135,4 m² Wohnfläche bietet diese Wohnung ein großzügiges, komfortables Wohnumfeld mit klarer Raumaufteilung, viel Licht und hoher Aufenthaltsqualität – ideal für langfristiges Wohnen im Kastanienhof.









