Penthouse Nr 39 Sohler Weg 55
Objektdetails
Beschreibung
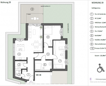
Diese außergewöhnlich großzügige Wohnung im Staffelgeschoss des Kastanienhofs bietet ein hochwertiges Wohnkonzept mit viel Raum, klaren Strukturen und einem besonderen Bezug zum Außenbereich. Der Grundriss ist weitläufig angelegt und verbindet offene Wohnbereiche mit gut getrennten Rückzugszonen.
Der großzügige Eingangsbereich mit Garderobe vermittelt bereits beim Betreten ein angenehmes Raumgefühl. Ein separates Gäste-WC sowie ein Hauswirtschafts- und Abstellraum sorgen für hohen Alltagskomfort und zusätzliche Ordnung.
Der Mittelpunkt der Wohnung ist der offen gestaltete Wohn-, Koch- und Essbereich mit über 37 m². Große Fensterflächen schaffen eine helle, offene Atmosphäre und ermöglichen einen direkten Zugang zur umlaufenden Terrasse. Die Raumgröße erlaubt flexible Möblierung und unterschiedliche Wohn- und Esssituationen.
Der private Bereich ist klar abgetrennt und umfasst ein Elternschlafzimmer sowie ein weiteres großzügiges Zimmer, das sich ideal als Kinderzimmer, Büro oder Gästezimmer nutzen lässt. Das Bad ist komfortabel dimensioniert und funktional angeordnet.
Ein besonderes Highlight ist die großzügige Terrasse mit über 23 m² Fläche, die den Wohnraum nach außen erweitert und vielfältige Nutzungsmöglichkeiten bietet – vom ruhigen Rückzugsort bis zum Platz für geselliges Beisammensein. Die Lage im Staffelgeschoss sorgt für ein hohes Maß an Privatsphäre und eine besondere Wohnqualität.
Mit rund 121 m² Wohnfläche bietet diese Wohnung ein außergewöhnlich komfortables, hochwertiges Wohnumfeld mit viel Platz, klarer Raumaufteilung und hoher Aufenthaltsqualität – ideal für anspruchsvolles, langfristiges Wohnen im Kastanienhof.









